14
Oct
2025
深圳保利瑧誉府 | 酒店化居住综合体
“保利瑧誉的设计,始于对深圳城市特质的理解。”
深圳,一座自山海渔村崛起的超级都市。
1978年之前,潮汐仍与渔船的橹声低语;
三十余载,它已完成了向现代都会的惊人蜕变。
如今,作为粤港澳大湾区的核心引擎,
这座城市既保留了自然的底色,
更涌动着国际的潮流与先锋的精神。



保利瑧誉的设计源于对深圳城市特质的深刻理解。团队思考的不仅是如何在有限的土地上营造高品质居所,更在于让建筑与城市共生,塑造独特的场所体验。


设计沿城市界面营造约400米全周长奢雅生活场景,并通过开口引入贯通南北的内部景观中轴打造一条通向绿地公园的通廊,将原本相对封闭的公园向公众打开,提升城市交通便捷性的同时,回应城市公共环境需求。漫步长廊之中,除了能体验时尚与戏剧性交融的国际艺术场景,还能享受立体园林、私家会所、恒温泳池与健身房等城市配套,以艺术化的空间组织和建筑设计回应公共环境需求,整体提升片区的生活品质。在艺术空间的基础上,设计叠加了一条通往二层的野趣自然立体归家路径,使居者在繁华之中亦能收获静谧与丰盈。坐落于腾讯全球总部对岸,项目在都市核心的繁盛语境中,为居者寻得一份从容与本真,并向城市呈现更高层次的生活可能。






“如何将国际顶级酒店的空间品质转化为适合深圳的居住解决方案?”这不是对任何国际范本的简单模仿,而是深圳在经历了高速增长后的设计决策。我们试图通过"景观最大化"、"材质精研"、"垂直空间组织"和"细节控制"的有机结合,建立新一代深圳顶级住宅的美学话语权。


「景观最大化设计」落位
层叠布局与视野特权
项目打造两栋超高层住宅,双塔错位布局,争取了对海景的超长观景面,并且在视野开阔、保证户型均好性的同时,减少对城市沿街空间压迫感。

「材质与氛围营造」落位
酒店艺术化场景设计
主入口约30米宽(含景墙)、11米高的门头采用了定制金属与漫云灰奢石,不同材质自然衔接衔接,呈现“去符号化”的高级内敛质感;仪式感与神性的场景营造,呈现出内敛典雅的质感,体现对品质的坚持。大堂及艺术过廊空间垂直延展,复现罗马万神殿般的神圣恢弘。中庭通过室内外空间融合,次序柱廊与水韵交织光影,景观与建筑和谐共舞。公共区域的空间流动性和视线引导,让每一次归家都成为充满仪式感的体验。


剧场感艺术会所中庭
「垂直空间组织」落位
拥抱垂直维度的立体园林
面对此项目地块,我们放弃了传统的平面铺陈模式,转向立体开发。释放地面空间给商业,将住区内部景观与多元活动空间布局于商业屋面层。


「细节控制」落位
空间本质的思考
社区高定艺术会所通过材质、色彩、灯光和声学的整体把控,营造出与深圳快节奏形成反差的内敛氛围。


©保利置业深圳公司

以“公园街区生活复合体”为愿景,我们试图让城市与自然在此交汇,让日常生活与公共场景在此交织,从而生成一个既有公园的诗意,又具街区的活力,同时彰显人居地标气质的场所。


一核两轴三园的规划格局
“一核”为核心绿地公园,承载休闲与生态功能;“两轴”分别是东西向的公共活力轴,串联起阅臻府24小时活力街区,以及南北向的配套服务轴,强化生活的便利性与完整性;“三园”则通过塔楼错位布置,形成双重内部花园,并与南侧花园景观相呼应,共同构建多层次的绿色体系。同时,错位布置的塔楼也保证了住宅景观视线的最大化延展。

项目首层平面图


层叠的居住综合体

地下层和地面层作为商业和入口空间,商业屋面层构建多元广场,成为私属的"天空会客厅"。这种垂直分层提高了空间效率,更创造了丰富的社区互动场景。楼栋之间以风雨连廊相连,使居住生活在自然与便利之间流畅衔接。



地面层入口及商业界面



“天空会客厅”——屋面层多元空间


具有雕塑感的壁柱、精致的型材与檐口处理,凸显价值感;立面融合了誉系风格特点与深圳年轻活力的城市形象,展现出兼具古典美与现代感的立面形象,立面采用几个标准模块的组合,形成重复和变化的韵律感,同时又不失丰富多样。

效果图
远景尺度上,建筑顶部切角以谦逊的姿态呼应腾讯总部轮廓线;中景尺度,商业二层架空区嵌入发光玻璃盒子形成"悬浮光带",在夜晚为城市街道带来柔和的光晕;近景尺度,艺术大门的铜门肌理采样自大铲湾礁石纹路,将城市记忆融入日常。

空间不仅是容器,更是生活方式的延伸。本项目产品体系以高效、舒适与可变为设计逻辑,回应当代家庭的多元需求。

115㎡【4房2厅2卫】户型示意图©保利置业深圳公司

123㎡【4房2厅2卫】户型示意图©保利置业深圳公司

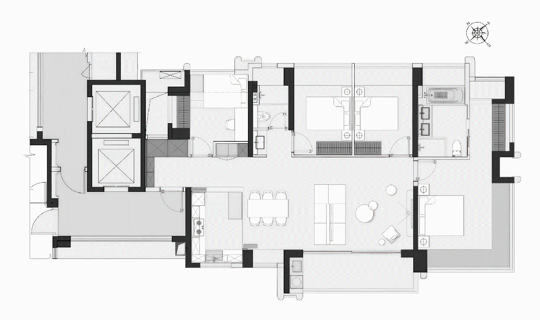
143㎡【4房2厅2卫】户型示意图©保利置业深圳公司

143㎡【4房2厅2卫】户型示意图 ©保利置业深圳公司
礼序空间
在户型上采用了首创全明独梯入户的归家方式,让每一户的归家都是私家尊享,配合全明电梯厅与仪式感玄关,营造尊崇归家的体验。
生活场景
U型厨房布局,动线流畅且满足双人操作;LDKB一体化,打破功能界限,形成开放而连贯的家庭交流场域。
可变空间
书房与餐厅可自由打开,转化为大尺度会客厅,空间灵活,满足家庭成长的多样需求。
私享天地
主卧设计“小家化”,配备270°全景飘窗与独立衣帽间;双面宽景观阳台与全赠送飘窗,不仅带来开阔的景观视野,更提供额外收纳与生活可能。

在密度与品质、城市与自然、国际视野与在地特色之间,我们始终尝试寻找那个微妙的平衡点。目前,项目正在稳步推进施工,期待建成的深圳保利瑧誉府不仅能成为宝安中心区的一抹优雅印记,更能为深圳人提供一种从容、质感、与自然共生的现代生活范本。

项目信息
项目名称:深圳保利瑧誉府
项目位置:广东深圳
业主单位:深圳市保金房地产开发有限公司
建筑面积:80530㎡
天华服务范围:建筑方案设计,单专业扩初
图片来源:九里建筑摄影,保利置业深圳公司